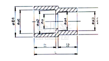
ANSI SCH80
|
Size |
D1 |
D2 |
d1 |
d2 |
I1 |
D3 |
d4 |
I2 |
d |
L |
|
3/4″*1/2″ |
35 |
30.5 |
26.87 |
26.57 |
27.4 |
21.54 |
21.23 |
24.22 |
16.5 |
54.5 |
|
1″*1/2″ |
44 |
30.5 |
33.66 |
33.27 |
30.58 |
21.54 |
21.23 |
24.22 |
16.5 |
58 |
|
1″*3/4″ |
44 |
35 |
33.66 |
33.27 |
30.58 |
26.87 |
26.57 |
27.4 |
20.5 |
61 |
|
1-1/4″*1/2″ |
54 |
30.5 |
42.42 |
42.04 |
34.75 |
21.54 |
21.23 |
24.22 |
16.5 |
62 |
|
1-1/4″*3/4″ |
54 |
35 |
42.42 |
42.04 |
34.75 |
26.87 |
26.57 |
27.4 |
20.5 |
65 |
|
1-1/4″*1″ |
54 |
44 |
42.42 |
42.04 |
34.75 |
33.66 |
33.27 |
30.58 |
28 |
68 |
|
1-1/2″*1/2″ |
60 |
30.5 |
48.56 |
48.11 |
37.93 |
21.54 |
21.23 |
24.22 |
16.5 |
65 |
|
1-1/2″*3/4″ |
60 |
35 |
48.56 |
48.11 |
37.93 |
26.87 |
26.57 |
27.4 |
20.5 |
68 |
|
1-1/2″*1″ |
60 |
44 |
48.56 |
48.11 |
37.93 |
33.66 |
33.27 |
30.58 |
28 |
71 |
|
1-1/2″*1-1/4″ |
60 |
54 |
48.56 |
48.11 |
37.93 |
42.42 |
42.04 |
34.75 |
35 |
75.5 |
|
2″*1/2″ |
73 |
30.5 |
60.63 |
60.17 |
41.1 |
21.54 |
21.23 |
24.22 |
16.5 |
68 |
|
2″*3/4″ |
73 |
35 |
60.63 |
60.17 |
41.1 |
26.87 |
26.57 |
27.4 |
20.5 |
71 |
|
2″*1″ |
73 |
44 |
60.63 |
60.17 |
41.1 |
33.66 |
33.27 |
30.58 |
28 |
74.5 |
|
2″*1-1/4″ |
73 |
54 |
60.63 |
60.17 |
41.1 |
42.42 |
42.04 |
34.75 |
35 |
78.5 |
|
2″*1-1/2″ |
73 |
60 |
60.63 |
60.17 |
41.1 |
48.56 |
48.11 |
37.93 |
42.5 |
82 |
GB PN10/DIN PN16
|
Nom SIZE |
∮de1 |
∮de2 |
L |
|
25X20 |
25 |
20 |
46 |
|
32X20 |
32 |
20 |
52 |
|
32X25 |
32 |
25 |
55 |
|
40X20 |
40 |
20 |
60 |
|
40X25 |
40 |
25 |
63 |
|
50X25 |
50 |
25 |
72 |
|
50X32 |
50 |
32 |
76 |
|
50X40 |
50 |
40 |
80 |
|
63X32 |
63 |
32 |
84 |
|
63X40 |
63 |
40 |
88 |
|
63X50 |
63 |
50 |
93 |
|
75X50 |
75 |
50 |
105 |
|
75X63 |
75 |
63 |
112 |
|
90X63 |
90 |
63 |
125 |
|
90X75 |
90 |
75 |
132 |
|
110X90 |
110 |
90 |
142 |



