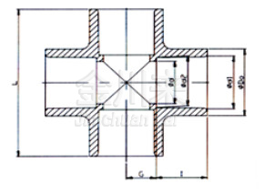
| Size | Do | d1 | d2 | I | d | G | L |
| 1/2″ | 29 | 21.54 | 21.23 | 24.22 | 16 | 13 | 74.44 |
| 3/4″ | 35 | 26.87 | 26.57 | 27.4 | 22 | 15 | 84.4 |
| 1″ | 44 | 33.66 | 33.27 | 30.58 | 28 | 18 | 97.16 |
| 1-1/4″ | 54 | 42.42 | 42.04 | 34.75 | 35 | 23 | 115.5 |
| 1-1/2″ | 60 | 48.56 | 48.11 | 37.93 | 43 | 26 | 127.9 |
| 2″ | 73 | 60.63 | 60.17 | 41.1 | 54 | 32 | 146.2 |
| 2-1/2″ | 88 | 73.38 | 72.85 | 47.45 | 65 | 39 | 172.9 |
| 3″ | 105 | 89.31 | 88.70 | 50.63 | 80 | 46.5 | 194.9 |
| 4″ | 132 | 114.80 | 114.10 | 60.15 | 100 | 59 | 238.3 |



